Beschrijving

Uitstekend centraal wonen mét comfort en gemak  
Deze bovenwoning op Europalaan 132 is gelegen op de zesde verdieping en biedt precies waar je naar op zoek bent: middenin het centrum, maar toch volop rust, ruimte en comfort. Wat wil je nog meer? Het appartement – gebouwd in 2008 – betreft een keurig afgewerkt en goed onderhouden complex. Hier woon je op niveau in meerdere opzichten!
Geen gedoe meer met traplopen: dankzij de ruime lift sta je zo voor je voordeur, zelfs als het even minder gaat met het beenwerk. Ideaal voor als je het gemak wilt van gelijkvloers wonen, zonder toe te geven op woonplezier. Boodschappen gedaan? Je rijdt zo met je karretje vanuit de lift je appartement binnen. Lekker makkelijk.
Met twee fijn bemeten slaapkamers is er ruimte genoeg voor een hobbykamer, gastenruimte of juist die royale logeerkamer voor de kleinkinderen. 
De keuken is netjes en compleet! Compact en praktisch, zo houd je alles overzichtelijk. 
Midden in het centrum wonen en toch altijd je auto kwijt kunnen, wie wil dat nou niet? Het betreft een ruime parkeerplaats vanwege de ligging naast de ingang.
Het gebouw uit 2008 ziet er puntgaaf uit en wordt keurig onderhouden. Bovendien hangt er een energielabel A aan dit appartement: dus lage energierekening én altijd behaaglijk warm. Zeker in deze tijd een extra pluspunt!
Vanuit je woonkamer kijk je uit over een levendig stukje Stadskanaal. Even lekker mensen kijken, of genieten van de rust na een drukke dag? *  
Ben je toe aan een nieuwe stap waarbij comfort en gemak vóór alles gaan, dan hoef je niet verder te zoeken. Deze bovenwoning is ideaal voor oudere echtparen of alleenstaanden die niets liever willen dan comfortabel wonen met alles binnen handbereik. Boodschappen, terrasjes, zorgvoorzieningen: je wandelt er zo naartoe.
Dit appartement verdient het om in het echt bekeken te worden. Maak snel een afspraak, want plekken op deze toplocatie zijn er zelden!

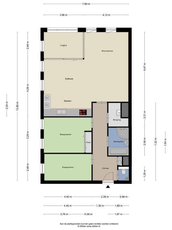
Indeling

Direct naast de lift gelegen voordeur, hal, toilet, meterkast, twee slaapkamers, badkamer met douchecabine ligbad en wastafel (  netjes), bijkeuken/berging met witgoedaansluiting en cv opstelling, ruime woonkamer met inpandig balkon ( v.v.glazen wanden) en open keuken, keukenblok keurig netjes en voorzien van diverse inbouwapparatuur.

Bijzonderheden

Ruime parkeerplaats direct naast de ingang ( ideaal met boodschappen e.d.)
Keurig onderhouden complex met acitieve VVE
Bijdage VVE € 227,71 per maand 
2 slaapkamers.
mooi centrale ligging in hartje centrum van Stadskanaal.
fietsenberging in de kelder.
Uiteraard een lift aanwezig!
op korte termijn beschikbaar

Kenmerken