Beschrijving
Zoek je een plekje waar je meteen het gevoel hebt dat je thuis bent? Kom dan zeker eens kijken bij deze prachtige vrijstaande woning aan de Floralaan 67 in Musselkanaal! Zelden kom je zo’n keurig nette, uitstekend onderhouden gezinswoning tegen – en geloof ons: deze fijne plek wil je niet missen.
Wie droomt er niet van een huis met volop leefruimte, geen directe buren voor het raam, parkeren op eigen terrein én een tuin waar je zonder omkijken van geniet? Dat allemaal – en meer – vind je hier. Met een perceel van maar liefst 716 m² heb je aan ruimte absoluut geen gebrek, zowel binnen als buiten! Het huis is gebouwd in 1975, maar is inmiddels flink aangepakt waardoor alles haast instapklaar is. Modern, fris en gezellig – precies zoals een huis hoort te zijn.
Een echte bonus van dit huis is het feit dat je twee slaapkamers plus een badkamer gewoon beneden vindt. Of je nu als gezin ruimte zoekt, je ouders graag wil laten logeren of zelf levensloopbestendig wilt wonen: dat kan hier allemaal! Geen gedoe meer met traplopen dus, wat het huis ook uitermate geschikt maakt voor oudere stellen of doorstromers.
Binnen stap je een verrassend lichte en ruime woonkamer binnen. De grote raampartijen laten elke zonnestraal binnen en bieden een mooi uitzicht op de recent fraai aangelegde tuin. De aangrenzende keuken is modern en praktisch ingericht!
Nooit meer zoeken naar een plek voor je auto: dat is nog eens luxe! De ruime oprit biedt plek aan meerdere auto’s. Fietsen, gereedschap, aanhanger of misschien wel een hobbyproject? In de aangebouwde garage kun je letterlijk alle kanten op. Super handig!
Zodra het weer het toelaat, slinger je de tuindeuren open en sta je zo onder die grote overkapping in de recent aangelegde tuin. Zet er een loungeset neer, hang wat lampjes op en je hebt gegarandeerd een zomer vol gezellige avonden met vrienden of familie.
Dit heerlijke, instapklare huis is ideaal voor gezinnen, doorstromers die nét wat meer ruimte zoeken, of oudere echtparen die het graag allemaal gelijkvloers hebben. Je woont hier op een heerlijke locatie met alle basisvoorzieningen dichtbij en volop ruimte, rust en comfort.
Zie jij jezelf hier al wonen? Neem dan gauw contact op! We plannen graag een bezichtiging in zodat je zelf kunt ervaren hoe bijzonder deze plek is. Aanvaarding is natuurlijk in overleg; alles op z’n tijd. Wie weet, tot snel aan de Floralaan 67!
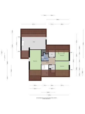
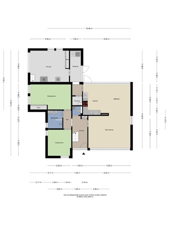
Indeling
Entree, ruime hal met meterkast en toilet, U vormige woonkamer met semi open keuken, modern keukenbl.ok in l-vorm met diverse inbouwapparatuur, bijkeuken met witgoed aansluiting en achterentree en deur naar de aangebouwde garage. Tevens 2 slaapkamers ( 1 in gebruik als kantoor) en een badkamer ( douchehoek en wastafelmeubel) op de begane grond.
Eerste verdieping
Ruime overloop met veel kastruimte, cv ruimte, drie ruime slaapkamers en badkamer met douchehoek wastafelmeubel en 2e toilet.
Overige verdiepingen
Trap in de garage naar grote zolderruimte.
Tuin
Onlangs mooi aangelegd met grote overkapping en diverse zitjes.
Bijzonderheden
Op mooi hoekperceel gelegen met veel parkeeruimte.
Onlangs mooi aangelegde tuin rondom met grote overkapping.
Aangebouwde garage met elektrische deuropener.
Gemoderniseerd met gebruik van moderne kleurstelling.
Modern keukenblok en sanitair.
Buitenom onlangs geschilderd.
Zonnepanelen aanwezig ( 12 st)
Dak - en muurisolatie en geheel v.v. HR++ beglazing.
Prachtige woning aanvaarding in overleg.